Woning HOB09
- Halfopen bebouwing
- Klassiek





Gelijkvloers 117,6 m2
- Leefruimte 38,3 m2
- Berging 11,4 m2
- Inkom / WC 14,8 m2
- Kantoor 11,5 m2
- Garage 17,4 m2
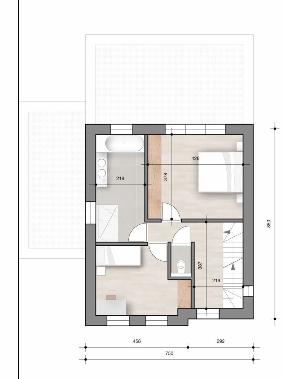
Verdiep 66,6 m2
- Slaapkamer 01 16,1 m2
- Slaapkamer 02 11,5 m2
- Badkamer 10,5 m2
Zolder 39,8 m2
- Zolder 34,3 m2
Totaal 224,0 m2

Gevelsteen gevoegd wit-beige genuanceerd

Houten voordeur met arduinen omkadering en plint

Moderne pastoriestijl

Steellook buitenschrijnwerk
Vragen? Wenst u een afspraak?
Hebt u vragen over onze woningen en villa’s in houtskeletbouw. Wilt u een afspraak om vrijblijvend uw droomwoning te bespreken? Wenst u een bezoek te brengen aan onze kijkwoningen?