Woning OB12
- Open bebouwing
- Klassiek





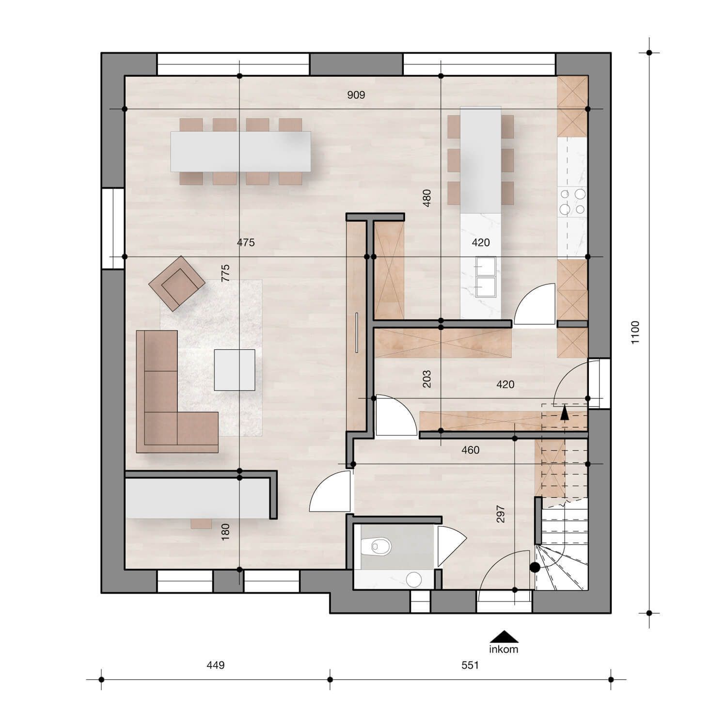
Gelijkvloers 108,2 m2
- Leefruimte 65,8 m2
- Berging 8,6 m2
- Inkom / WC 13,7 m2
Verdiep 108,2 m2
- Slaapkamer 01 24,9 m2
- Slaapkamer 02 13,6 m2
- Slaapkamer 03 13,5 m2
- Slaapkamer 04 12,5 m2
- Badkamer 10,5 m2
Zolder 78,2 m2
- Zolder 70,2 m2
Totaal 294,6 m2

Gevelsteen gevoegd rood genuanceerd

Steellook ramen

Houten voordeur met arduinen omkadering

Bureau achter laag muurtje in woonkamer
Vragen? Wenst u een afspraak?
Hebt u vragen over onze woningen en villa’s in houtskeletbouw. Wilt u een afspraak om vrijblijvend uw droomwoning te bespreken? Wenst u een bezoek te brengen aan onze kijkwoningen?